返回首页 | 加入收藏 | 联系我们
 
  闸阀
  截止阀
  球阀
  水力控制阀
  蝶阀
  止回阀
  旋塞阀
  调节阀
  疏水阀
  过滤器
名称:Z40H、Z40Y、Z40W 型 PN40、PN63 铸钢闸阀

产品介绍:

产品说明

Z40H、Z40Y、Z40W 型 PN40、PN63 铸钢闸阀:手动、法兰连接、明杆楔式弹性闸板,阀座密封面材料为不锈钢、硬质合金,工作压力 4.0~6.3MPa,阀体材料为碳素钢、铬钼钢、不锈钢的闸阀。

产品性能参数

Z40H、Z40Y、Z40W 型 PN40、PN63 铸钢闸阀主要性能参数
型号 PN 工作压力 / MPa 适用温度 / ℃ 适用介质
Z40H-40 40 4.0 ≤ 425 水、蒸汽、油品
Z40H-63 63 6.3
Z40H-40Q 40 4.0
Z40Y-40 40 4.0
Z40Y-63 63 6.3
Z40Y-40I 40 4.0 ≤ 550 蒸汽、油品
Z40Y-63I 63 6.3
Z40W-40P 40 4.0 ≤ 150 弱腐蚀性介质
Z40W-40P 40 4.0
Z40Y-40R 40 4.0 腐蚀性介质

产品零部件材料

Z40H、Z40Y、Z40W 型 PN40、PN63 铸钢闸阀零部件材料
型号 材料
阀体、阀盖、闸板 闸杆 密封面 填料
Z40H-40 碳素钢 铬不锈钢 堆焊铁基合金 石棉石墨或柔性石棉
Z40H-63
Z40H-40Q
Z40Y-40 堆焊硬质合金
Z40Y-63
Z40Y-40I 铬钼钢 铬钼钢 堆焊铁基合金 石棉石墨或柔性石墨
Z40Y-63I
Z40W-40P 铬镍钛不锈钢 铬镍钛不锈钢 本体材料 聚四氟乙烯
Z40W-40P 堆焊硬质合金
Z40Y-40R 铬镍钼钛不锈钢 铬镍钼钛不锈钢 本体材料
Z40Y-40R 堆焊硬质合金

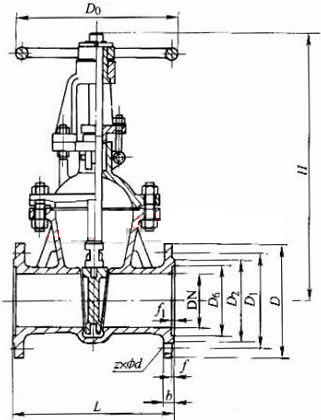
产品外形及结构尺寸 (PN40)

Z40H、Z40Y、Z40W 型 (PN40) 铸钢闸阀外形及结构尺寸
DN L D D1 D2 D8 b z×ød H H1 D0 重量 / kg
20 150 105 75 55 51 16 4×ø14 256 438 240 29
25 160 115 85 65 58 16 4×ø14 275 452 240 33
32 180 135 100 78 66 18 4×ø18 285 530 280 46
40 200 145 110 85 76 18 4×ø18 320 620 320 63
50 250 160 125 100 88 20 4×ø18 371 438 240  
65 280 180 145 120 110 22 8×ø18 393 452 240  
80 310 195 160 135 121 22 8×ø18 455 530 280  
100 350 230 190 160 150 24 8×ø23 551 620 320  
125 400 270 220 188 176 28 8×ø25 634 765 360  
150 450 300 250 218 204 30 8×ø25 708 845 360  
200 550 375 320 282 260 38 12×ø30 858 1041 400  
250 650 445 385 345 313 42 12×ø34 1015 1244 450  
300 750 510 450 408 364 46 16×ø34 1145 1474 560  
350 850 570 510 465 422 52 16×ø34 1280 1663 640  
400 950 655 585 535 474 58 16×ø41 1450 1886 720 849

产品外形及结构尺寸 (PN63)

Z40H、Z40Y、Z40W 型 (PN63) 铸钢闸阀外形及结构尺寸
DN L D D1 D2 D8 b z×ød H H1 D0 重量 / kg
25 210 135 100 78 58 22 4×ø18 310 10
32 230 150 110 82 66 24 4×ø23 320 14
40 240 165 125 95 76 24 4×ø23 360 37
50 250 175 135 105 88 26 4×ø23 371 438 280 34
65 280 200 160 130 110 28 8×ø23 393 473 280 43
80 310 210 170 140 121 30 8×ø23 455 550 320 60
100 350 250 200 168 150 32 8×ø25 551 669 360 89
125 400 295 240 202 175 36 8×ø30 628 772 400 140
150 450 340 280 240 204 38 8×ø34 718 893 450 207
200 550 405 345 300 260 44 12×ø34 873 1100 560 327
250 650 470 400 352 313 48 12×ø41 1050 1332 640 467
300 750 530 460 412 364 54 16×ø41 1470 1804 640 590
350 850 595 525 475 474 60 16×ø41

产品图片

Z40H、Z40Y、Z40W 型 PN40、PN63 铸钢闸阀图片

产品外形及结构尺寸示意图

Z40H、Z40Y、Z40W 型 PN40、PN63 铸钢闸阀外形及结构尺寸示意图

【我要订购】   【关闭】
电话:0371-66230159
传真:0371-66231001  
E-mail:shhdfm@163.com
营业执照信息公示  版权所有:河南冈野阀门有限公司 备案号:豫ICP备12027349号 技术支持:郑州互易