返回首页 | 加入收藏 | 联系我们
 
  闸阀
  截止阀
  球阀
  水力控制阀
  蝶阀
  止回阀
  旋塞阀
  调节阀
  疏水阀
  过滤器
名称:Z41 铸钢闸阀

产品介绍:

产品说明

Z41 铸钢闸阀适用于公称压力PN1.6~20.0MPa,工作温度 -29℃~570℃的石油、化工、水力、火力电站各种系统的管路上,切断或接通管路介质。适用介质为:水、油品、蒸气、及酸、碱、氨、尿素、含硫天然气等。

产品性能参数

Z41 铸钢闸阀主要性能参数
型号 PN 工作压力 / MPa 适用温度 / ℃ 适用介质
Z41H-16C、25 16、25 1.6、2.5 ≤ 425 水、蒸汽、油品
Z41Y-16C、25
Z41W-16P、25P 16、25 1.6、2.5 ≤ 150 弱腐蚀性介质
Z41Y-16P、25P
Z41W-16R、25R
Z41Y-16R、25R
Z41Y-16I、25I ≤ 550 油品、蒸汽
Z41Y-16V、25V ≤ 570 水、蒸汽、油品
Z41H-40~200 40~200 4.0~20.0 ≤ 425 水、蒸汽、油品
Z41H-40I~200I 40~200 4.0~20.0 ≤ 550 水、蒸汽、油品
Z41H-40P~200P 40~200 4.0~20.0 ≤ 200 硝酸类
Z41H-40R~200R 40~200 4.0~20.0 ≤ 200 硝酸类

产品零部件材料

Z41 铸钢闸阀零部件材料
型号 材料
阀体、阀盖、闸板 阀杆 密封面 填料
Z41H-16C、25 碳素钢 铬不锈钢 堆焊铁基合金 石棉石墨或柔性石墨
Z41Y-16C、25 堆焊硬质合金
Z41W-16P、25P 铬镍钛不锈钢 铬镍钛不锈钢 本体材料 石棉石墨或柔性石墨
Z41Y-16P、25P 堆焊硬质合金
Z41W-16R、25R 铬镍钼钛不锈钢 铬镍钼钛不锈钢 本体材料
Z41Y-16R、25R 堆焊硬质合金
Z41Y-16I、25I 铬钼合金钢 铬钼合金钢 堆焊硬质合金
Z41Y-16V、25V 铬钼钒钢 铬钼钒钢 堆焊硬质合金 柔性石墨
Z41H-40~200 碳钢 铬不锈钢 碳钢+Cr13或硬质合金 柔性石墨
Z41H-40I~200I 铬钼钢 合金钢 合金钢+硬质合金 柔性石墨
Z41H-40P~200P 铬镍钛钢 不锈钢 不锈钢或不锈钢+硬质合金 柔性石墨
Z41H-40R~200R 铬镍钼钛钢 不锈钢 不锈钢或不锈钢+硬质合金 柔性石墨

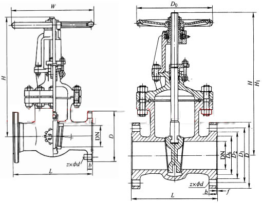
产品外形及结构尺寸 (PN16)

Z41(PN16) 铸钢闸阀外形及结构尺寸 (mm)
DN L D D1 D2 b f z×ød H D0 重量 / kg
15 130 95 65 45 14 2 4×ø14 175 200 4
20 150 105 75 55 14 2 4×ø14 180 200 5
25 160 115 85 65 14 2 4×ø14 210 200 6
32 180 135 100 78 16 2 4×ø18 210 200 7
40 200 145 110 85 16 3 4×ø18 350 200 19
50 250 160 125 100 16 3 4×ø18 358 240 29
65 265 180 145 120 18 3 4×ø18 375 240 33
80 280 195 160 135 20 3 8×ø18 433 280 45
100 300 215 180 155 20 3 8×ø18 502 320 63
125 325 245 210 185 22 3 8×ø18 612 360 108
150 350 280 240 210 24 3 8×ø23 676 360 134
200 400 335 295 265 26 3 12×ø23 820 400 192
250 450 405 355 320 30 3 12×ø25 969 450 273
300 500 460 410 375 30 4 12×ø25 1142 560 379
350 550 520 470 435 34 4 16×ø25 1280 640 590
400 600 580 525 485 36 4 16×ø30 1452 640 850
450 650 640 585 545 40 4 20×ø30 1541 720 907
500 700 705 650 608 44 4 20×ø34 1676 720 958
600 800 840 770 718 48 5 20×ø41 1874 800 1112

产品外形及结构尺寸 (PN25)

Z41(PN25) 铸钢闸阀外形及结构尺寸 (mm)
DN L D D1 D2 b f z×ød H D0 重量 / kg
15 130 95 65 45 16 2 4×ø14 175 200 4
20 150 105 75 55 16 2 4×ø14 180 200 5
25 160 115 85 65 16 2 4×ø14 210 220 6
32 180 135 100 78 18 2 4×ø18 210 220 7
40 200 145 110 85 18 3 4×ø18 350 220 18
50 250 160 125 100 20 3 4×ø18 358 250 25
65 265 180 145 120 22 3 8×ø18 373 280 35
80 280 195 160 135 22 3 8×ø18 435 300 50
100 300 230 190 160 24 3 8×ø23 500 350 65
125 325 270 220 188 28 3 8×ø25 614 400 100
150 350 300 250 218 30 3 8×ø25 674 450 135
200 400 360 310 278 34 3 12×ø25 818 500 180
250 450 425 370 332 36 3 12×ø30 969 550 207
300 500 485 430 390 40 4 16×ø30 530 560 400
350 550 550 490 448 44 4 16×ø34 1280 640 631
400 600 610 550 505 48 4 16×ø34 1450 640 900
450 650 660 600 555 50 4 20×ø34 1541 720 1013
500 700 730 660 610 52 4 20×ø41 1676 720 1166
600 800 840 770 718 56 5 20×ø41 1874 800 1258
700 900 955 875 815 60 5 24×ø48 2280 850
800 1000 1070 990 930 64 5 24×ø48 2420 900

产品外形及结构尺寸 (PN40、PN63)

Z41(PN40、PN63) 铸钢闸阀外形及结构尺寸 (mm)
DN L D H W 重量 / kg
50 250 160 685 250 30
175 30
65 280 180 705 250 41
200 300 42
80 310 195 780 250 48
210 350 51
100 350 230 805 300 78
250 400 80
125 400 270 890 350 112
295 400 125
150 450 300 945 350 152
340 1002 450 175
200 550 375 1100 400 200
405 1150 450 220
250 650 445 1350 450 300
470 500 320
300 750 510 1445 500 450
530 1528 650 490
350 850 570 1665 680
595 1792 700
400 950 655 1930 850
670 2180 920

产品外形及结构尺寸 (PN100)

Z41(PN100) 铸钢闸阀外形及结构尺寸 (mm)
DN L D H W 重量 / kg
50 250 195 680 300 48
65 280 220 720 300 68
80 310 230 870 350 92
100 350 265 885 400 133
125 400 310 1020 450 216
150 450 350 1110 500 275
200 550 430 1225 500 360
250 650 500 1257 550 700

产品外形及结构尺寸 (PN160)

Z41(PN160) 铸钢闸阀外形及结构尺寸 (mm)
DN L D H W 重量 / kg
65 340 245 820 350 110
80 390 260 850 350 145
100 450 300 980 400 192
125 525 355 1050 450 307

产品外形及结构尺寸 (PN200)

Z41(PN200) 铸钢闸阀外形及结构尺寸 (mm)
DN L D H W 重量 / kg
50 350 210 712 350 108
65 410 260 765 400 195
80 470 290 835 450 250
100 550 360 950 500 350
125 650 385 1080 500 540
150 750 440 1140 600 738

产品图片

Z41 铸钢闸阀图片

产品外形及结构尺寸示意图

Z41 铸钢闸阀外形及结构尺寸示意图

【我要订购】   【关闭】
电话:0371-66230159
传真:0371-66231001  
E-mail:shhdfm@163.com
营业执照信息公示  版权所有:河南冈野阀门有限公司 备案号:豫ICP备12027349号 技术支持:郑州互易