返回首页 | 加入收藏 | 联系我们
 
  闸阀
  截止阀
  球阀
  水力控制阀
  蝶阀
  止回阀
  旋塞阀
  调节阀
  疏水阀
  过滤器
名称:Z40W、Z40Y 不锈钢闸阀

产品介绍:

产品说明

Z40W、Z40Y 不锈钢闸阀适用于公称压力 1.6~16.0MPa,工作温度 ≤ 150℃的石油、化工、水力、火力电站各种系统的管路上,切断或接通管路介质。适用介质为:水、油品、蒸汽、醋酸及弱腐蚀性、腐蚀性等介质。

产品性能参数

Z40W、Z40Y 不锈钢闸阀主要性能参数
型号 PN 工作压力 / MPa 适用温度 / ℃ 适用介质
Z40W-16P 16 1.6 ≤ 150 弱腐蚀性介质
Z40W-25P 25 2.5
Z40Y-16P 16 1.6
Z40Y-25P 16 1.6
Z40Y-16R 16 1.6 腐蚀性介质
Z40Y-25R 25 2.5
Z40W-40P 40 4.0 ≤ 150 弱腐蚀性介质
Z40W-40P 40 4.0
Z40Y-40R 40 4.0 腐蚀性介质
Z40Y-40R 40 4.0
Z40W-100P 100 10.0 ≤ 200 醋酸类
Z40W-160P 160 16.0

产品零部件材料

Z40W、Z40Y 不锈钢闸阀零部件材料
型号 材料
阀体、阀盖、闸板 阀杆 密封面 填料
Z40W-16P 铬镍钛不锈钢 铬镍钛不锈钢 铬镍钛不锈钢本体材料 聚四氟乙烯
Z40W-25P
Z40Y-16P 堆焊铁基合金
Z40Y-25P
Z40Y-16R 铬镍钼钛不锈钢 铬镍钼钛不锈钢
Z40Y-25R
Z40W-40P 铬镍钛不锈钢 铬镍钛不锈钢 本体材料
Z40W-40P 堆焊硬质合金
Z40Y-40R 铬镍钼钛不锈钢 铬镍钼钛不锈钢 本体材料
Z40Y-40R 堆焊硬质合金
Z40W-100P 铬镍钼钛不锈钢 铬镍钼钛不锈钢 堆焊硬质合金
Z40W-160P

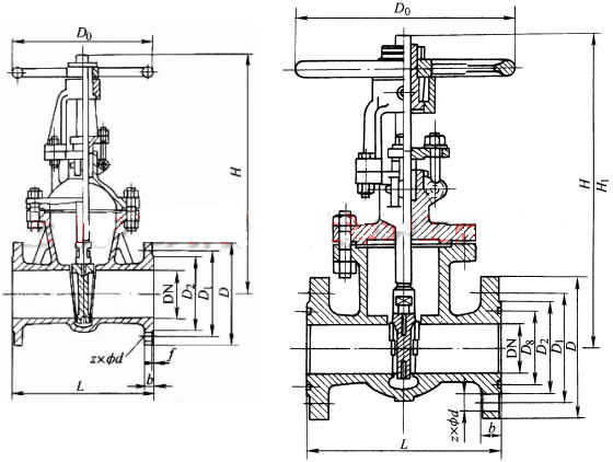
Z40W、Z40Y (PN16) 不锈钢闸阀外形及结构尺寸

Z40W、Z40Y (PN16) 不锈钢闸阀主要外形及结构尺寸 (mm)
DN L D D1 D2 b f z×ød H D0 重量 / kg
15 130 95 65 45 14 2 4×ø14 175 200 4
20 150 105 75 55 14 2 4×ø14 180 200 5
25 160 114 85 65 14 2 4×ø14 210 200 6
32 180 135 100 78 16 2 4×ø18 210 200 7
40 200 145 110 85 16 3 4×ø18 350 200 19
50 250 160 125 100 16 3 4×ø18 358 240 29
65 265 180 145 120 18 3 4×ø18 375 240 33
80 280 195 160 135 20 3 8×ø18 433 280 45
100 300 215 180 155 20 3 8×ø18 502 320 63
125 325 245 210 185 22 3 8×ø18 312 360 108
150 350 280 240 210 24 3 8×ø23 676 360 134
200 400 335 295 265 26 3 12×ø23 820 400 192
250 450 405 355 320 30 3 12×ø25 969 450 273
300 500 460 410 375 30 4 12×ø25 1142 560 379
350 550 520 470 435 34 4 16×ø25 1280 640 590
400 600 580 525 485 36 4 16×ø30 1452 640 850
450 650 640 585 545 40 4 20×ø30 1541 720 907
500 700 705 650 608 44 4 20×ø34 1676 720 958
600 800 840 770 718 48 5 20×ø41 1874 800 1112

Z40W、Z40Y (PN25) 不锈钢闸阀外形及结构尺寸

Z40W、Z40Y (PN25) 不锈钢闸阀主要外形及结构尺寸 (mm)
DN L D D1 D2 b f z×ød H D0 重量 / kg
15 130 95 65 45 16 2 4×ø14 175 200 4
20 150 105 75 55 16 2 4×ø14 180 200 5
25 160 115 85 65 16 2 4×ø14 210 220 6
32 180 135 100 78 18 2 4×ø18 210 220 7
40 200 145 110 85 18 3 4×ø18 350 220 18
50 250 160 125 100 20 3 4×ø18 358 250 25
65 165 180 145 120 22 3 8×ø18 373 280 35
80 280 195 160 135 22 3 8×ø18 435 300 50
100 300 230 190 160 24 3 8×ø23 500 350 65
125 325 270 220 188 28 3 8×ø25 614 400 100
150 350 300 250 278 30 3 8×ø25 374 450 135
200 400 360 310 278 34 3 12×ø25 818 500 180
250 450 425 370 332 36 3 12×ø30 969 550 207
300 500 485 430 390 40 4 16×ø30 530 560 400
350 550 550 490 448 44 4 16×ø34 1280 640 631
400 600 610 550 505 48 4 16×ø34 1450 640 900
450 650 660 600 555 50 4 20×ø34 1541 720 1013
500 700 730 660 610 52 4 20×ø41 1676 720 1166
600 800 840 770 718 56 5 20×ø41 1874 800 1258
700 900 955 875 815 60 5 24×ø48 2280 850
800 1000 1070 990 930 64 5 24×ø48 2420 700

Z40W、Z40Y (PN40) 不锈钢闸阀外形及结构尺寸

Z40W、Z40Y (PN40) 不锈钢闸阀主要外形及结构尺寸 (mm)
DN L D D1 D2 D8 b z×ød H H1 D0 重量 / kg
20 150 105 75 55 51 16 4×ø14 256 438 240 29
25 160 115 85 65 58 16 4×ø14 275 452 240 33
32 180 135 100 78 66 18 4×ø18 285 530 280 46
40 200 145 110 85 76 18 4×ø18 320 620 320 63
50 250 160 125 100 88 20 4×ø18 371 438 240  
65 280 180 145 120 110 22 8×ø18 393 452 240  
80 310 195 160 135 121 22 8×ø18 455 530 280  
100 350 230 190 160 150 24 8×ø23 551 620 320  
125 400 270 220 188 176 28 8×ø25 634 765 360  
150 450 300 250 218 204 30 8×ø25 708 845 360  
200 550 375 320 282 260 38 12×ø30 858 1041 400  
250 650 445 385 345 313 42 12×ø34 1015 1244 450  
300 750 510 450 408 364 46 16×ø34 1145 1474 560  
350 850 570 510 465 422 52 16×ø34 1280 1663 640  
400 950 655 585 535 474 58 16×ø41 1450 1886 720 849

Z40W (PN100) 不锈钢闸阀外形及结构尺寸

Z40W (PN100) 不锈钢闸阀主要外形及结构尺寸 (mm)
DN L D D1 D2 D8 b z×ød H H1 D0 重量 / kg
25 210 135 100 78 501 24 4×ø18 310 13
32 230 150 110 82 65 24 4×ø23 320 20
40 240 165 125 95 75 26 4×ø23 360 60
50 250 195 145 112 85 28 4×ø25 490 558 360 50
65 280 220 170 138 110 32 8×ø25 540 622 400 70
80 310 230 180 148 115 34 8×ø25 572 671 400 100
100 350 265 210 172 145 38 8×ø30 573 671 400 110
125 400 310 250 210 175 42 8×ø34 744 892 560 180
150 450 350 290 250 205 46 12×ø34 800 972 560 250
200 550 430 360 312 265 54 12×ø41 800 972 560 360
250 650 500 430 382 320 60 12×ø41 1050 1305
300 750 585 500 442 375 70 16×ø48 1200 1505

Z40W (PN160) 不锈钢闸阀外形及结构尺寸

Z40W (PN160) 不锈钢闸阀主要外形及结构尺寸 (mm)
DN L D D1 D2 D8 b z×ød H H1 D0 重量 / kg
15 170 110 75 52 35 24 4×ø18 230 250 200 7
20 190 130 90 62 45 26 4×ø23 260 288 200 10
25 210 140 100 72 50 28 4×ø23 280 310 280 14
32 230 165 115 85 65 30 4×ø25 312 350 320 21
40 260 175 125 93 75 32 4×ø27 350 395 320 26
50 300 215 165 132 95 36 8×ø25 512 612 360 73
65 360 245 190 152 110 44 8×ø30 560 677 360 110
80 390 260 205 168 130 46 8×ø30 585 686 400 141
100 450 300 240 200 160 48 8×ø34 631 751 450 185
125 525 355 285 238 190 60 8×ø41 723 868 560 320
150 600 390 318 270 305 66 12×ø41 820 997 640 462
200 750 480 400 245 265 78 12×ø48 990 1224 720 711

产品图片

Z40W、Z40Y 不锈钢闸阀图片

产品外形及结构尺寸示意图

Z40W、Z40Y 不锈钢闸阀外形及结构尺寸示意图

【我要订购】   【关闭】
电话:0371-66230159
传真:0371-66231001  
E-mail:shhdfm@163.com
营业执照信息公示  版权所有:河南冈野阀门有限公司 备案号:豫ICP备12027349号 技术支持:郑州互易