|
|
 |
 |
| 名称:Z11H、Z11Y 内螺纹闸阀 |
|
产品介绍:
Z11H、Z11Y 内螺纹闸阀(钢制内螺纹楔式闸阀)流体阻力小,启、闭所需力矩较小,可以使用在介质向两方向流动的环网管路上,也就说介质流向不受限制。全开时,密封面受工作介质的冲蚀比截止阀小。形体结构比较简单,制造工艺性较好,结构长度比较短。
设计与制造:JB/T 7746
螺纹端尺寸:GB 7306
结构长度:JB/T 7746
压力~温度:GB/T 9131
检验与试验:JB/T 9092
Z11H、Z11Y 内螺纹闸阀主要性能参数
| 型号 |
PN |
工作压力 / MPa |
适用温度 / ℃ |
适用介质 |
| Z11H-25 |
25 |
2.5 |
≤425 |
水、蒸汽、油品 |
| Z11H-40 |
40 |
4.0 |
| Z11H-63 |
63 |
6.3 |
| Z11H-100 |
100 |
10 |
≤450 |
| Z11H-160 |
160 |
16 |
| Z11Y-25 |
25 |
2.5 |
≤425 |
水、蒸汽、油品 |
| Z11Y-40 |
40 |
4.0 |
| Z11Y-63 |
63 |
6.3 |
| Z11Y-100 |
100 |
10 |
| Z11Y-160 |
160 |
16 |
| Z11Y-25I |
25 |
2.5 |
≤550 |
蒸汽、油品 |
| Z11Y-40I |
40 |
4.0 |
| Z11Y-63I |
63 |
6.3 |
| Z11Y-25P |
25 |
2.5 |
≤150 |
弱腐蚀性介质 |
| Z11Y-40P |
40 |
4.0 |
| Z11Y-63P |
63 |
6.3 |
| Z11Y-100P |
100 |
10.0 |
| Z11Y-160P |
160 |
16.0 |
Z11H、Z11Y 内螺纹闸阀零部件材料
| 型号 |
材料 |
| 阀体、阀盖、闸板 |
闸杆 |
密封面 |
填料 |
| Z11H-25 |
碳素钢 |
铬不锈钢 |
铬不锈钢或碳钢堆焊硬质合金 |
石棉石墨或柔性石墨 |
| Z11H-40 |
| Z11H-63 |
| Z11H-100 |
锻钢 |
锻钢 |
铬不锈钢 |
- |
| Z11H-160 |
| Z11Y-25 |
碳素钢 |
铬不锈钢 |
铬不锈钢或碳钢堆焊硬质合金 |
石棉石墨或柔性石墨 |
| Z11Y-40 |
| Z11Y-63 |
| Z11Y-100 |
| Z11Y-160 |
| Z11Y-25I |
铬钼钢 |
耐热钢或铬不锈钢 |
铬钼钢堆焊硬质合金 |
石棉石墨或柔性石墨 |
| Z11Y-40I |
| Z11Y-63I |
| Z11Y-25P |
铬镍钛不锈钢 |
铬镍钛不锈钢 |
铬镍钛钢堆焊硬质合金 |
柔性石墨或聚四氟 |
| Z11Y-40P |
| Z11Y-63P |
| Z11Y-100P |
| Z11Y-160P |
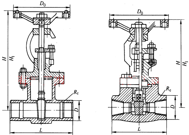
Z11H PN25~PN63 内螺纹闸阀主要外形及结构尺寸 (mm)
| DN |
Rc / in |
L |
D |
H |
H1 |
D0 |
重量/ kg |
| 15 |
Rc ½ |
90 |
34 |
208 |
229 |
120 |
3.5 |
| 20 |
Rc ¾ |
100 |
44 |
244 |
275 |
140 |
5.7 |
| 25 |
Rc 1 |
110 |
48 |
261 |
296 |
160 |
6.9 |
| 32 |
Rc 1¼ |
120 |
56 |
270 |
310 |
160 |
8.5 |
| 40 |
Rc 1½ |
135 |
64 |
304 |
352 |
200 |
12.3 |
| 50 |
Rc 2 |
155 |
75 |
318 |
377 |
240 |
30 |
Z11Y PN25~PN63 内螺纹闸阀主要外形及结构尺寸 (mm)
| DN |
Rc / in |
L |
D |
H |
H1 |
D0 |
重量 / kg |
| 15 |
Rc ½ |
80 |
34 |
142 |
155 |
100 |
1.9 |
| 20 |
Rc ¾ |
90 |
40 |
145 |
160 |
100 |
2.0 |
| 25 |
Rc 1 |
100 |
50 |
164 |
186 |
120 |
3.3 |
| 32 |
Rc 1¼ |
120 |
58 |
187 |
216 |
140 |
4.8 |
| 40 |
Rc 1½ |
130 |
66 |
215 |
250 |
160 |
6.7 |
| 50 |
Rc 2 |
140 |
78 |
244 |
276 |
180 |
9.6 |
【产品外形及结构尺寸示意图】

|
| 【我要订购】 【关闭】 |
|
|
|
|