| 
 | 
    
        
          
              
                  | 
                  | 
               
              
                
                    
                      
	
  
  
    | 名称:Z43H/X 铸钢平板闸阀 | 
   
  
  
  | 
   
  
    产品介绍:  【产品用途】 
Z43H/X铸钢平板闸阀适用于天然气,石油,化工,环保,城市管道,燃气管线等输送管线,放空系统和汽储存装置上,用作启闭设备。Z43型带导流孔单闸板式平板闸阀适用于天然气开采和净化的长输管线。 
- 阀座的密封结构应为弹性有预紧力,上、下游密封座同时密封的结构。阀座与密封物间始终为面对面密封。 
 - 阀座有自清洗功能,并且在阀门开启或关闭过程中不受气流的直接冲刷。阀座应由有润滑、不磨损材料制成。 
 - 阀门执行机构的故障不会影响到阀门的其它部分,维修和更换工作能够在不拆下阀门的情况下进行。 
- 轭架套管:铝青铜轭架套管配置针形止推轴承,很大程度减少操作扭矩。 
 - 阀杆:螺纹长度直到托架;销钉和点焊;具有稳定性。 
 - 压力密封:结构简单,配置分段扣环和镀银低碳钢垫圈,有助于拆卸和实现很好的阀帽密封。 
 - 阀座环:焊接阀座环垂直于流动通道,易于维护。 
 - 执行机构:这些阀门可以配置电动、液动或气动执行机构。DN300以下配置标准手动手轮,DN350以上配置斜齿轮操作机构。 
 - 轭架:完全装配式轭架通过抗震测试,易于维护和安装执行机构。 
 - 压盖:两件式,自调节压盖,避免被弹出。 
 - 整体后座:硬面,使用寿命很长。 
 - 阀瓣:弹簧负载阀瓣能够自行调节,减少执行机构的扭矩需求。 
 - 整体止动:整体铸造托架止动装置,定位组装的托架阀瓣,使得阀座更加稳定可靠。 
    
设计与制造:JB/T5298 
法兰尺寸:JB/79 
结构长度:JB/T5298 
压力~温度:GB9131 
检验与试验:JB/T5298 
 
Z43H/X铸钢平板闸阀主要性能规范
| 设计等级 | 
常温下试验压力(MPa) | 
适用温度℃ | 
适用介质 |  
| 壳体 | 
左密封 | 
左密封 | 
低压密封 | 
“G”型 | 
“D”型 | 
普通型 | 
“抗硫”型 | 
“基本”型 |  
| 公称压力PN(MPa) | 
1.6 | 
2.4 | 
1.76 | 
1.76 | 
0.6 | 
-29~50 | 
-45~21 | 
-2~121 | 
H2S和CO2总含量大于500mg/m2的介质 | 
石油天然气、水等 |  
| 2.5 | 
3.75 | 
2.75 | 
2.75 | 
0.6 |  
| 4.0 | 
6.0 | 
4.4 | 
4.4 | 
0.6 |  
| 6.4 | 
9.6 | 
7.04 | 
7.04 | 
0.6 |  
| 磅级Lb | 
150 | 
3.0 | 
2.2 | 
2.2 | 
0.6 |  
| 300 | 
7.7 | 
5.6 | 
5.6 | 
0.6 |   
Z43H/X铸钢平板闸阀主要零件材质
| 阀门/阀盖 | 
WCB | 
WC6 | 
A352-LCB | 
A351-CF8M |  
| 闸板 | 
2Cr13+ENP | 
20CrMoV+STL | 
ANSO410+ENP | 
ANSI316+ENP |  
| 阀杆 | 
2Cr13 | 
2Cr13 | 
A182-A6a | 
A182-A316S |  
| 阀座 | 
25+PTFE | 
20CrMoV+STL | 
A105+PTFE | 
A182-F316+PTFE |  
| 填料 | 
NBR/FPM | 
柔性石墨 | 
聚四氟乙烯 |  
| 垫片 | 
- |  
| 螺栓 | 
35 | 
35CrMo | 
A193-B7M | 
A193-B8 |  
| 适用介质 | 
水、油口、蒸汽 | 
蒸汽、油品 | 
丙烷、乙烯 | 
硝酸类 |   
Z43H/X铸钢平板闸阀主要外形和连接尺寸(PN1.6-PN2.5)
 1.6MPa | 
DN | 
L | 
D | 
D1 | 
D2 | 
Do | 
f | 
b | 
H | 
H1 | 
n-Φd |  
凸面法兰 (RF) (K)Z43WF6C (K)Z543WF6C (K)Z643WF6C (K)Z943WF6C | 
50 | 
178 | 
160 | 
125 | 
100 | 
250 | 
3 | 
16 | 
584 | 
80 | 
4-Φ18 |  
| 65 | 
190 | 
180 | 
145 | 
120 | 
250 | 
3 | 
18 | 
634 | 
95 | 
4-Φ18 |  
| 80 | 
203 | 
195 | 
160 | 
135 | 
250 | 
3 | 
20 | 
688 | 
100 | 
8-Φ18 |  
| 100 | 
229 | 
215 | 
181 | 
155 | 
300 | 
3 | 
20 | 
863 | 
114 | 
8-Φ18 |  
| 125 | 
254 | 
245 | 
210 | 
185 | 
350 | 
3 | 
22 | 
940 | 
132 | 
8-Φ18 |  
| 150 | 
267 | 
280 | 
240 | 
210 | 
350 | 
3 | 
24 | 
1030 | 
150 | 
8-Φ23 |  
| 200 | 
292 | 
335 | 
295 | 
265 | 
350 | 
3 | 
26 | 
1277 | 
168 | 
12-Φ23 |  
| 250 | 
330 | 
405 | 
355 | 
320 | 
400 | 
3 | 
30 | 
1491 | 
203 | 
12-Φ25 |  
| 300 | 
356 | 
460 | 
410 | 
375 | 
450 | 
4 | 
30 | 
1701 | 
237 | 
12-Φ25 |  
| 350 | 
381 | 
520 | 
470 | 
435 | 
500 | 
4 | 
34 | 
1875 | 
265 | 
16-Φ30 |  
| 400 | 
406 | 
580 | 
525 | 
485 | 
305 | 
4 | 
36 | 
2180 | 
300 | 
16-Φ30 |  
| 450 | 
432 | 
640 | 
585 | 
545 | 
305 | 
4 | 
40 | 
2440 | 
325 | 
20-Φ34 |  
| 500 | 
457 | 
705 | 
650 | 
608 | 
305 | 
4 | 
44 | 
2860 | 
360 | 
20-Φ41 |  
| 600 | 
508 | 
840 | 
770 | 
718 | 
305 | 
5 | 
48 | 
3450 | 
425 | 
20-Φ41 |  
| 700 | 
610 | 
910 | 
840 | 
788 | 
305 | 
5 | 
50 | 
3960 | 
460 | 
24-Φ41 |  
| 800 | 
660 | 
1020 | 
950 | 
898 | 
305 | 
5 | 
52 | 
4550 | 
512 | 
24-Φ41 |  
| 900 | 
711 | 
1120 | 
1050 | 
998 | 
250 | 
5 | 
54 | 
5250 | 
565 | 
28-Φ48 |  
| 1000 | 
811 | 
1250 | 
1170 | 
1110 | 
250 | 
5 | 
56 | 
5870 | 
630 | 
28-Φ18 |  
| 2.5MPa | 
50 | 
178 | 
160 | 
125 | 
100 | 
250 | 
3 | 
20 | 
584 | 
80 | 
4-Φ18 |  
凸面法兰 (RF) (K)Z43WF-25 (K)Z543WF-25 (K)Z643WF-25 (K)Z943WF-25 | 
65 | 
190 | 
180 | 
145 | 
120 | 
300 | 
3 | 
22 | 
634 | 
95 | 
8-Φ18 |  
| 80 | 
203 | 
195 | 
160 | 
135 | 
350 | 
3 | 
22 | 
388 | 
100 | 
8-Φ18 |  
| 100 | 
229 | 
230 | 
190 | 
160 | 
350 | 
3 | 
24 | 
863 | 
114 | 
8-Φ23 |  
| 125 | 
254 | 
270 | 
220 | 
188, | 
350 | 
3 | 
28 | 
940 | 
132 | 
8-Φ25 |  
| 150 | 
267 | 
300 | 
250 | 
218 | 
400 | 
3 | 
30 | 
1030 | 
150 | 
8-Φ25 |  
| 200 | 
292 | 
360 | 
310 | 
278 | 
450 | 
3 | 
34 | 
1277 | 
168 | 
12-Φ25 |  
| 250 | 
330 | 
425 | 
370 | 
332 | 
500 | 
3 | 
36 | 
1491 | 
203 | 
12-Φ30 |  
| 300 | 
356 | 
485 | 
430 | 
390 | 
305 | 
4 | 
40 | 
1701 | 
237 | 
16-Φ30 |  
| 350 | 
381 | 
550 | 
490 | 
448 | 
305 | 
4 | 
44 | 
1875 | 
265 | 
16-Φ34 |  
| 400 | 
406 | 
610 | 
550 | 
505 | 
305 | 
4 | 
48 | 
2180 | 
300 | 
16-Φ34 |  
| 450 | 
432 | 
660 | 
600 | 
555 | 
305 | 
4 | 
50 | 
2440 | 
325 | 
20-Φ34 |  
| 500 | 
457 | 
730 | 
660 | 
610 | 
305 | 
4 | 
52 | 
2860 | 
360 | 
20-Φ41 |  
| 600 | 
508 | 
840 | 
770 | 
718 | 
305 | 
5 | 
56 | 
3450 | 
425 | 
20-Φ41 |  
| 700 | 
610 | 
955 | 
875 | 
815 | 
305 | 
5 | 
60 | 
3960 | 
460 | 
24-Φ48 |  
| 800 | 
660 | 
1070 | 
990 | 
930 | 
305 | 
5 | 
64 | 
4550 | 
512 | 
24-Φ48 |  
| 900 | 
711 | 
1180 | 
1090 | 
1025 | 
- | 
5 | 
66 | 
5250 | 
595 | 
28-Φ54 |  
| 1000 | 
811 | 
1305 | 
1210 | 
1140 | 
- | 
5 | 
68 | 
5870 | 
660 | 
28-Φ48 |   
Z43H/X铸钢平板闸阀主要外形和连接尺寸(PN4.0-PN10.0)
| 4.0MPa | 
DN | 
L | 
D | 
D1 | 
D2 | 
Y | 
Do | 
f | 
f2 | 
b | 
H | 
H1 | 
n-Φd |  
凹凸法兰 (MFM) (K)Z43WF-40 (K)Z543WF-40 (K)Z643WF-40 (K)Z943WF-40 | 
50 | 
250 | 
160 | 
125 | 
100 | 
88 | 
250 | 
3 | 
4 | 
20 | 
584 | 
80 | 
4-Φ18 |  
| 65 | 
280 | 
180 | 
145 | 
120 | 
110 | 
250 | 
3 | 
4 | 
22 | 
634 | 
95 | 
8-Φ18 |  
| 80 | 
310 | 
195 | 
160 | 
135 | 
121 | 
250 | 
3 | 
4 | 
22 | 
679 | 
102 | 
8-Φ18 |  
| 100 | 
350 | 
230 | 
190 | 
160 | 
150 | 
300 | 
3 | 
4.5 | 
24 | 
863 | 
115 | 
8-Φ23 |  
| 125 | 
400 | 
270 | 
220 | 
188 | 
176 | 
350 | 
3 | 
4.5 | 
28 | 
940 | 
133 | 
8-Φ25 |  
| 150 | 
450 | 
300 | 
250 | 
218 | 
204 | 
350 | 
3 | 
4.5 | 
30 | 
1040 | 
152 | 
8-Φ25 |  
| 200 | 
550 | 
375 | 
320 | 
282 | 
260 | 
350 | 
3 | 
4.5 | 
38 | 
1282 | 
188 | 
12-Φ30 |  
| 250 | 
650 | 
445 | 
385 | 
345 | 
313 | 
400 | 
3 | 
4.5 | 
42 | 
1495 | 
223 | 
12-Φ34 |  
| 300 | 
750 | 
415 | 
450 | 
408 | 
364 | 
450 | 
4 | 
4.5 | 
46 | 
1701 | 
250 | 
16-Φ34 |  
| 350 | 
850 | 
470 | 
510 | 
465 | 
422 | 
500 | 
4 | 
5 | 
52 | 
1880 | 
280 | 
16-Φ34 |  
| 400 | 
950 | 
655 | 
585 | 
535 | 
474 | 
305 | 
4 | 
5 | 
58 | 
2200 | 
310 | 
20-Φ41 |  
| 450 | 
1050 | 
680 | 
610 | 
560 | 
524 | 
305 | 
4 | 
5 | 
60 | 
2480 | 
335 | 
20-Φ41 |  
| 500 | 
1150 | 
755 | 
670 | 
612 | 
576 | 
305 | 
4 | 
5 | 
62 | 
2890 | 
380 | 
20-Φ48 |  
| 600 | 
1350 | 
890 | 
795 | 
730 | 
678 | 
305 | 
5 | 
6 | 
62 | 
2480 | 
450 | 
20-Φ54 |  
| 700 | 
1450 | 
995 | 
900 | 
835 | 
768 | 
305 | 
5 | 
6 | 
68 | 
3985 | 
500 | 
24-Φ54 |  
| 800 | 
1650 | 
1135 | 
1030 | 
960 | 
876 | 
305 | 
5 | 
6 | 
76 | 
4750 | 
570 | 
24-Φ58 |  
| 6.4MPa | 
50 | 
250 | 
175 | 
135 | 
105 | 
88 | 
250 | 
3 | 
4 | 
26 | 
584 | 
90 | 
4-Φ23 |  
凹凸法兰 (MFM) (K)Z43WF-64 (K)Z543WF-64 (K)Z643WF-64 (K)Z943WF-64 | 
65 | 
280 | 
200 | 
160 | 
130 | 
110 | 
250 | 
3 | 
4 | 
28 | 
634 | 
105 | 
8-Φ23 |  
| 80 | 
310 | 
210 | 
170 | 
140 | 
121 | 
250 | 
3 | 
4 | 
30 | 
679 | 
110 | 
8-Φ23 |  
| 100 | 
350 | 
250 | 
200 | 
168 | 
150 | 
300 | 
3 | 
4.5 | 
32 | 
763 | 
130 | 
8-Φ25 |  
| 125 | 
400 | 
295 | 
202 | 
176 | 
350 | 
3 | 
4.5 | 
36 | 
970 | 
150 | 
8-Φ30 | 
- |  
| 150 | 
450 | 
340 | 
280 | 
240 | 
204 | 
350 | 
3 | 
4.5 | 
38 | 
1038 | 
175 | 
8-Φ34 |  
| 200 | 
500 | 
405 | 
345 | 
300 | 
260 | 
350 | 
3 | 
4.5 | 
44 | 
1282 | 
210 | 
12-Φ34 |  
| 250 | 
650 | 
470 | 
400 | 
352 | 
313 | 
400 | 
3 | 
4.5 | 
48 | 
1495 | 
240 | 
12-Φ41 |  
| 300 | 
750 | 
530 | 
460 | 
412 | 
364 | 
450 | 
4 | 
4.5 | 
54 | 
1965 | 
270 | 
16-Φ41 |  
| 350 | 
850 | 
595 | 
525 | 
475 | 
422 | 
500 | 
4 | 
5 | 
60 | 
2185 | 
300 | 
16-Φ41 |  
| 400 | 
950 | 
670 | 
585 | 
525 | 
474 | 
305 | 
4 | 
5 | 
66 | 
2573 | 
335 | 
16-Φ48 |  
| 450 | 
1050 | 
715 | 
630 | 
570 | 
524 | 
305 | 
4 | 
5 | 
68 | 
2800 | 
360 | 
20-Φ48 |  
| 500 | 
1150 | 
800 | 
705 | 
640 | 
576 | 
305 | 
4 | 
5 | 
70 | 
3280 | 
405 | 
20-Φ54 |  
| 600 | 
1350 | 
930 | 
820 | 
750 | 
678 | 
305 | 
5 | 
6 | 
76 | 
380 | 
470 | 
20-Φ58 |  
| 10.0MPa | 
50 | 
250 | 
195 | 
145 | 
112 | 
88 | 
250 | 
3 | 
4 | 
28 | 
590 | 
100 | 
4-Φ25 |  
凹凸法兰 (MFM) (K)Z43WF00 (K)Z543WF00 (K)Z643WF00 (K)Z943WF00 | 
65 | 
280 | 
220 | 
170 | 
138 | 
110 | 
250 | 
3 | 
4 | 
32 | 
640 | 
115 | 
8-Φ25 |  
| 80 | 
310 | 
230 | 
180 | 
148 | 
121 | 
250 | 
3 | 
4 | 
34 | 
680 | 
120 | 
8-Φ25 |  
| 100 | 
350 | 
265 | 
210 | 
172 | 
150 | 
300 | 
3 | 
4.5 | 
38 | 
870 | 
135 | 
8-Φ30 |  
| 125 | 
400 | 
310 | 
250 | 
210 | 
176 | 
350 | 
3 | 
4.5 | 
42 | 
980 | 
155 | 
8-Φ34 |  
| 150 | 
450 | 
350 | 
290 | 
250 | 
204 | 
350 | 
3 | 
4.5 | 
46 | 
1100 | 
180 | 
12-Φ34 |  
| 200 | 
550 | 
430 | 
360 | 
312 | 
260 | 
350 | 
3 | 
4.5 | 
454 | 
1315 | 
220 | 
12-Φ41 |  
| 250 | 
650 | 
500 | 
430 | 
382 | 
313 | 
400 | 
3 | 
4.5 | 
60 | 
1605 | 
255 | 
12-Φ41 |  
| 300 | 
75 | 
585 | 
500 | 
442 | 
364 | 
450 | 
4 | 
4.5 | 
70 | 
1925 | 
295 | 
16-Φ48 |  
| 350 | 
850 | 
665 | 
560 | 
408 | 
422 | 
500 | 
4 | 
5 | 
76 | 
2280 | 
335 | 
16-Φ54 |  
| 400 | 
950 | 
715 | 
620 | 
558 | 
474 | 
305 | 
4 | 
5 | 
80 | 
2580 | 
360 | 
16-Φ54 |   
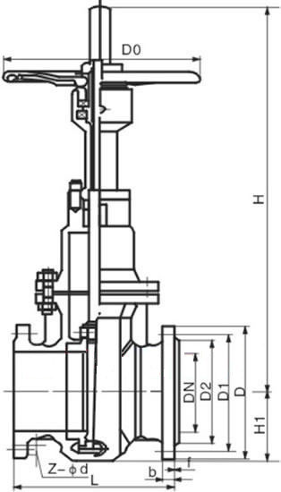
【产品外形和连接尺寸尺寸示意图】
 
  | 
   
  
    | 【我要订购】   【关闭】 | 
   
  
  | 
                     
                    | 
               
              | 
         
        |