| 
 | 
    
        
          
              
                  | 
                  | 
               
              
                
                    
                      
	
  
  
    | 名称:沟槽式卡箍Y型过滤器 | 
   
  
  
  | 
   
  
    产品介绍:  
 
 
沟槽式卡箍Y型过滤器:过滤面积大、流阻系数小、下端部装有自由冲洗装置,冲洗时间快比一般Y型过滤快8-10倍。阀体内外采用无毒性的粉体环氧树脂喷涂,使水质不至于出现缺水及阀体的腐蚀。过滤网采用不锈钢,在使用过程中不会出现滤网结锈而减少过滤面积。本阀具有双向密封功能,安装时不受介质流向的限制,也不受空间位置的影响,可在任何方向安装。 
沟槽式卡箍Y型过滤器主要性能参数
| 型号 | 
PN | 
工作压力 (Mpa) | 
适用温度 (℃) | 
适用介质 |  
| DFSRY-16Q | 
16 | 
1.6 | 
≤ 100 | 
蒸汽、水 |  
| DFSRY-16C |  
| DFSRY-16P | 
硝酸类 |  
| DFSRY-16QR | 
醋酸类 |   
沟槽式卡箍Y型过滤器零部件材料
| 型号 | 
材料 |  
| 阀体、法兰盖 | 
过滤网 |  
| DFSRY-16Q | 
球墨铸铁 | 
不锈钢 |  
| DFSRY-16C | 
碳素钢 |  
| DFSRY-16P | 
不锈钢 |  
| DFSRY-16QR | 
不锈钢 |   
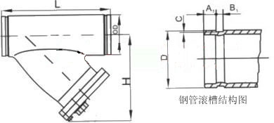
沟槽式卡箍Y型过滤器主要外形及结构尺寸 (mm)
| DN | 
DN/in | 
OD | 
L | 
H | 
  | 
DN | 
DN/in | 
OD | 
L | 
H |  
| 50 | 
2 | 
60 | 
200 | 
150 | 
150 | 
6 | 
165 | 
460 | 
360 |  
| 65 | 
21/2 | 
76 | 
240 | 
180 | 
200 | 
8 | 
219 | 
550 | 
440 |  
| 80 | 
3 | 
89 | 
270 | 
200 | 
250 | 
10 | 
273 | 
680 | 
530 |  
| 100 | 
4 | 
114 | 
340 | 
260 | 
300 | 
12 | 
325 | 
790 | 
580 |  
| 125 | 
5 | 
140 | 
400 | 
310 | 
  | 
  | 
  | 
  | 
  |   
沟槽式卡箍Y型过滤器钢管滚槽、开槽基本尺寸及偏差表 (mm)
| 公称通径 | 
钢管外径 | 
A1 0/-0.5 | 
B1 +0.5/0 | 
C +0.5/0 |  
| 50 | 
60 | 
14.5 | 
9.5 | 
2.2 |  
| 65 | 
76 |  
| 80 | 
89 |  
| 100 | 
114 | 
16 |  
| 125 | 
140 |  
| 150 | 
165 |  
| 200 | 
219 | 
19 | 
13 | 
2.5 |  
| 250 | 
273 |  
| 300 | 
325 | 
3.3 |   
  
 | 
   
  
    | 【我要订购】   【关闭】 | 
   
  
  | 
                     
                    | 
               
              | 
         
        |